


產品中心
Product Center -
陰陽離子交換器
2024-07-09 11:28:33
產品詳情
簡介:
陽、陰離子交換器用于降低和去除水中的陽、陰離子的設備。
工作原理:
陽離子交換器采用HCL再生,陰離子交換器采用NaOH再生,陽樹脂中的H離子與水中的陽離子進行交換反應去除水中的陽離子,陰樹脂中OH離子與水中的陰離子進行交換反應去除絕大部分水中的陽陰離子。陰樹脂去除陰離子,流速20-30。

應用:
主要用于鍋爐、化工、輕工、紡織、醫藥、生物、電子等用水的除鹽純化制備,陽陰交換器出水即一級除鹽出水。
設備結構型式分為固定床、浮動床,一般使用固定床為多
1:根據再生方式可分為:順流再生、逆流再生、無頂壓逆流再生
2:根據出水裝置結構可分為:水帽結構、石英砂墊層結構
3:根據用途可分為:單層、雙層、雙室雙層等

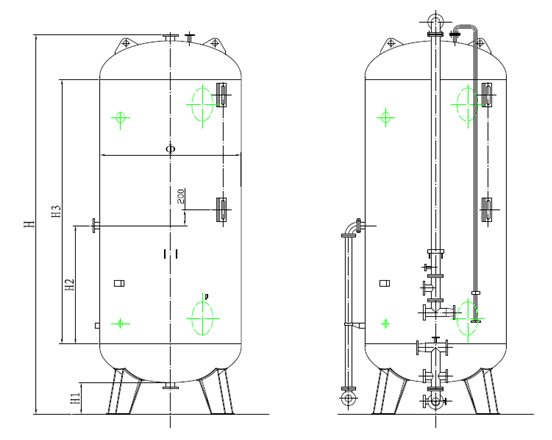
陰陽離子交換器
技術參數:
工作壓力:≤0.59MPa
工作溫度:5℃~50℃
運行流速:20m/h~25m/h
流量:20T/H~200T/H
規格:Φ1000~Φ3200
進水品質:懸浮物≤5mg/L
出水品質:陽床出水總硬度為0,鈉泄漏量不大于100微克/升,一般在20~30微克/升。
陰床出水電導率<10μS/cm。
陰陽離子交換器尺寸規格表:




遼寧一諾環境產業集團有限公司
地址:遼寧省北票市經濟技術開發區一諾環保產業園
電話:400-082-9898
手機:18842199977
給我們留言
掃一掃,關注我們
Copyright ? 2020 All Rights Reserved. 遼寧一諾環境產業集團有限公司版權所有 遼ICP備19012322號-3